Proyecto de ampliación y rediseño funcional
Un proyecto funcional y acogedor, adaptado a las necesidades reales de la familia.


El cliente enfrentaba dos necesidades claras:
1-falta de una segunda habitación y 2- una cocina pequeña, con mala ventilación y olores persistentes, pero sin querer perder el estilo de cocina abierta.


📍CALDERA, CHILE
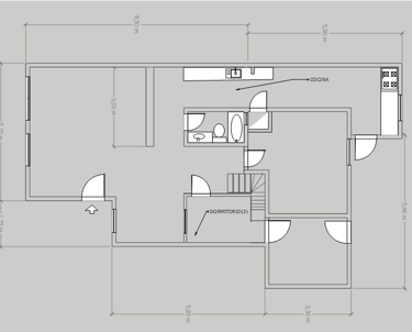
La solución fue:
1- una ampliación inteligente del área de cocina, reubicando la zona de cocción al fondo del espacio nuevo, con ventilación natural y extractor, y separándola del área social.
2-Además, se añadió un nuevo dormitorio sin sacrificar la fluidez entre cocina, comedor y living.
3-El mobiliario fue diseñado a medida para optimizar el espacio y mejorar la funcionalidad.
ANTES / DESPUIS


Registro del avance previo al resultado final.


Inicio de la construcción del nuevo dormitorio.
Fase de obra correspondiente a la nueva área de cocina.
Mishleen studio
Transformamos tus ideas en espacios únicos y funcionales.
contacto:
Creatividad
contacto@mishleenstudio.cl
+56937750713
© 2025. All rights reserved.
